Inhalt

Sie befinden sich hier: Bürgerservice » Baugebiete » Baugebiet Hennenbach

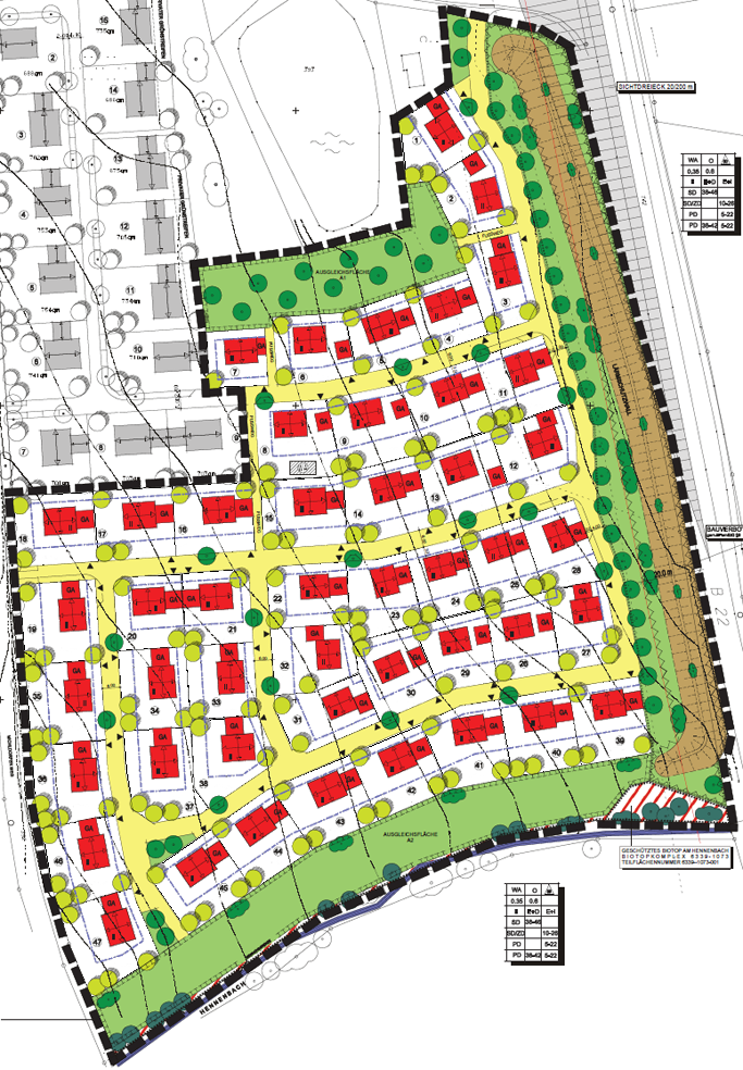
Baugebiet Hennenbach

Bei Fragen bzw. Interesse an einem Bauplatz in Irchenrieth wenden Sie sich bitte an uns!

 

  = freie Bauplätze

 

Liste aller freien Bauplätze

Karte des Baugebietes


*
Preise incl. Erschließungskosten

Kinderermäßigung:
Die Ermäßigung beträgt für jedes Kind unter 14 Jahren 2.400,00 €.
Die Ermäßigung ist begrenzt auf maximal 7.200,00 € (drei Kinder) je Bauparzelle.